Mieszkanie wśród lasu-staw, ogród

lokalizacja: Grotniki, Prometeusza

574 000,00 PLN

7 972,22 PLN

Opis nieruchomości

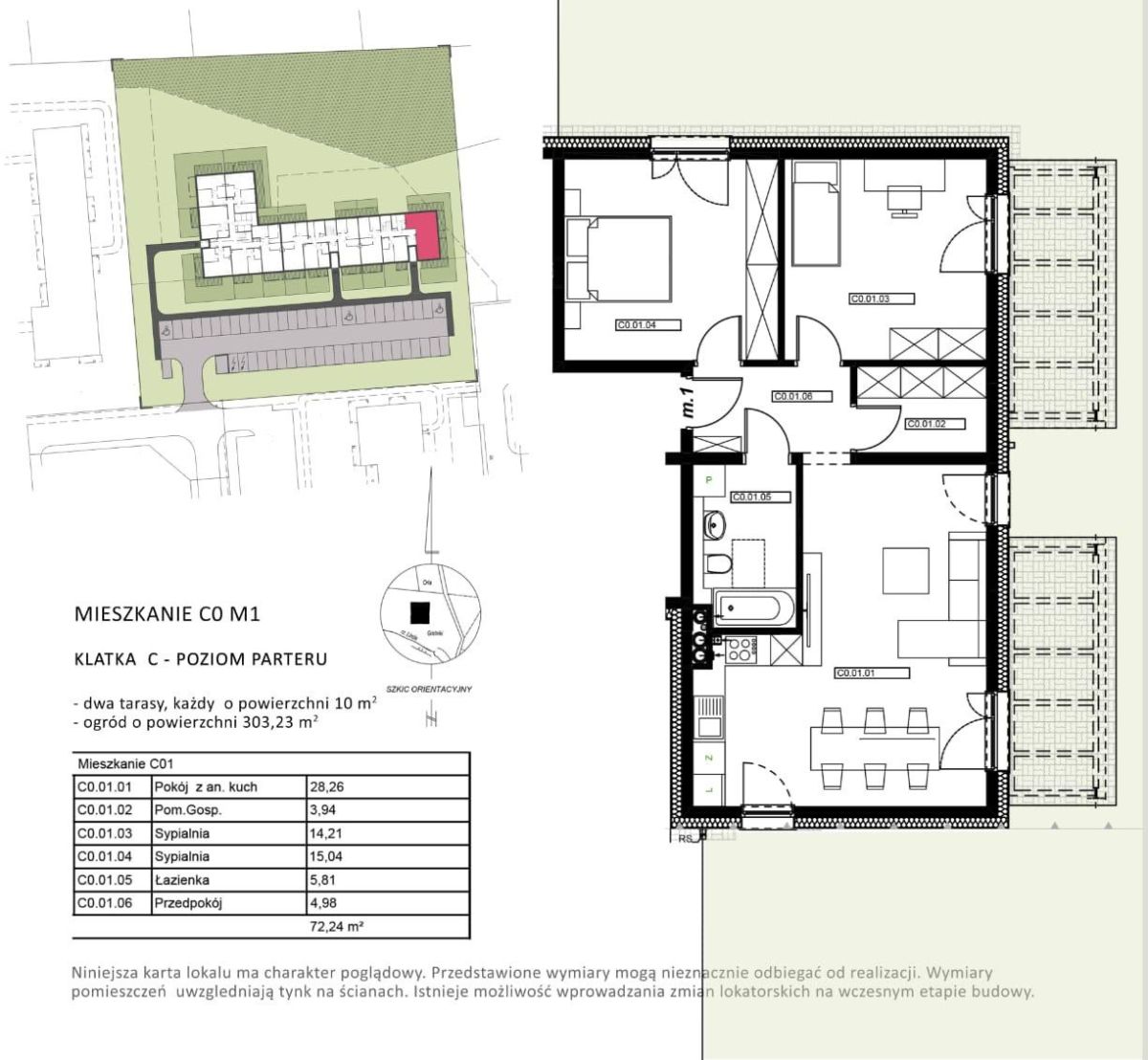
Na sprzedaż 3-pokojowe mieszkanie z aneksem kuchennym o powierzchni 72 m²,
z ogródkiem, położone na parterze kameralnego, 2-piętrowego budynku.
Inwestycja w standardzie deweloperskim, z planowanym oddaniem w 2026 roku.

Park Grotniki - wyjątkowa inwestycja PROMETEON
Kompleks mieszkaniowy usytuowany jest w malowniczej miejscowości Grotniki nad rzeką Lindą, otoczonej lasami i terenami rekreacyjnymi. To przestrzeń, w której dom, biznes i natura tworzą spójną całość.

Najważniejsze atuty inwestycji:

Bliskość natury - lasy i rzeka tuż obok, idealne do wypoczynku i aktywności.

Zróżnicowana oferta - mieszkania, apartamenty oraz działki budowlane i rekreacyjne.

Bezpieczeństwo - ogrodzone osiedle z monitoringiem.

Nowoczesna infrastruktura - drogi wewnętrzne, oświetlenie LED.

Doskonała komunikacja - szybki dojazd do miasta, dogodna lokalizacja.

Kameralny charakter - niewielka skala zabudowy sprzyja poczuciu wspólnoty.

Architektura - nowoczesna, a zarazem harmonizująca z otoczeniem.

Mieszkanie w skrócie:

metraż: 72,24 m²

układ: pokój z aneksem kuchennym, 2 sypialnie, łazienka, przedpokój

piętro: parter

balkon dwa tarasy każdy o powierzchni 10m2 plus ogród 303m2

standard: deweloperski

termin oddania: 2026 r.

do mieszkania przynależy miejsce parkingowe i komórka lokatorska

To doskonała propozycja dla osób, które chcą połączyć komfort życia w nowoczesnym mieszkaniu z bliskością przyrody i spokojem na co dzień.

"Niniejsze ogłoszenie ma charakter wyłącznie informacyjny i nie stanowi oferty w rozumieniu art. 66 §1 Kodeksu cywilnego.
Biuro Nieruchomości pobiera wynagrodzenie za świadczone usługi pośrednictwa."

Adres strony www: https:// NULL

Kontakt do opiekuna:

Nieruchomości 55

Dominika Ferens
Nieprawidłowy adres E-mail
Mapa

Strona korzysta z plików cookie w celu realizacji usług zgodnie z Polityką prywatności. Możesz określić warunki przechowywania lub dostępu do cookie w Twojej przeglądarce.